
Brian Campa
Leadership
Clemson, SC
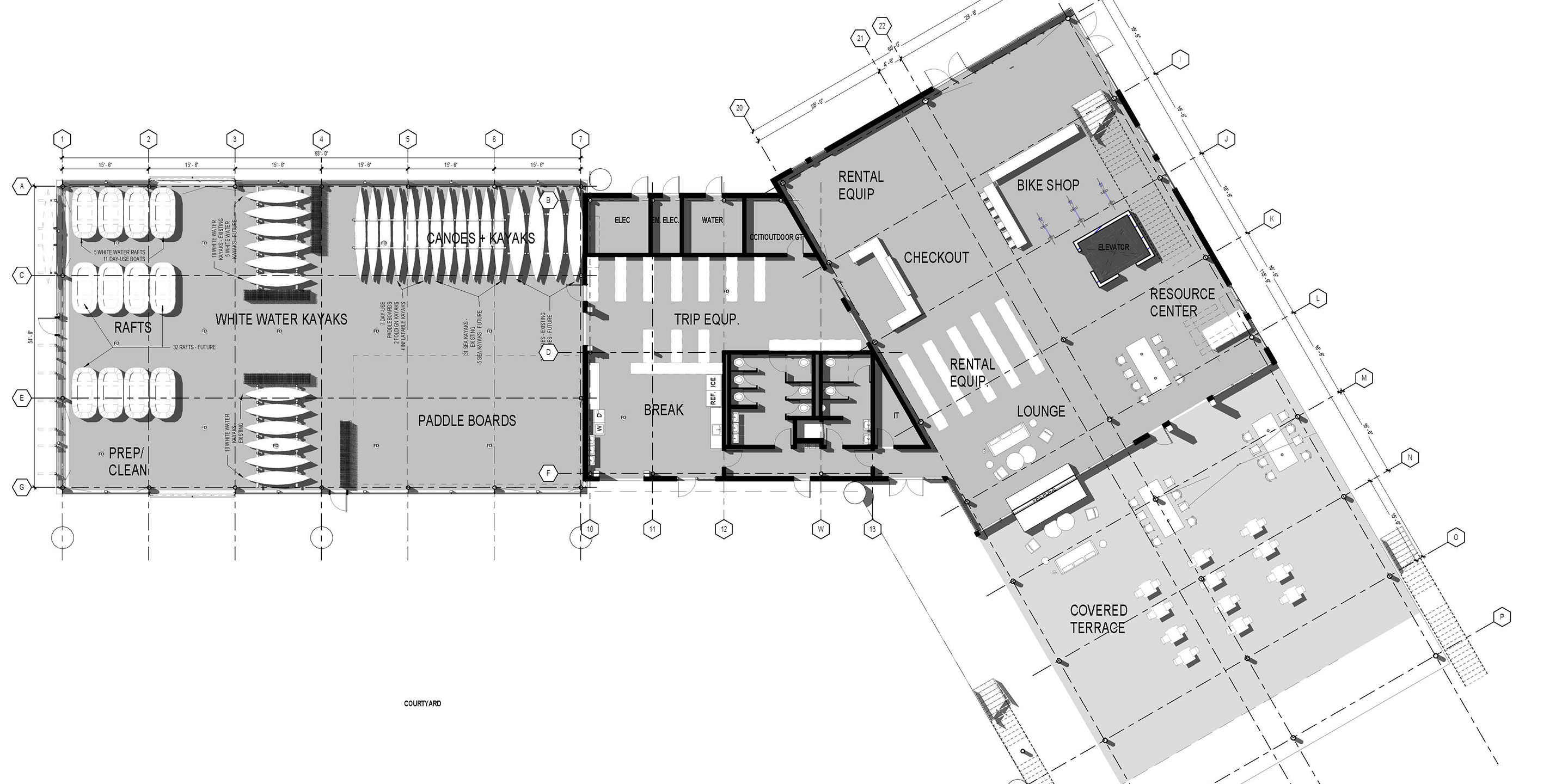
The Andy Quattlebaum Outdoor Education Center is a 16,000 SF facility that is part of Clemson University’s Snow Family Outdoor Fitness and Wellness Complex at Lake Hartwell. The center provides space to run the rental and instructional aspects of the center’s outdoor recreational services. Camping, biking, boating gear are on display for check out by students. In addition, group trips, wellness seminars and classes, social events, and training are supported by the facility. Active learning classrooms are designed to be flexible in order to accommodate ranges of learning from yoga, rowing, aerobics, to standard academics.
The building is designed to be a net zero ready facility. With the installation of PV on both roofs, the facility would produce enough energy to offset its needs.
This project also represents Clemson’s first Mass Timber facility. Cross-laminated timber floors, roof, and shear walls are provided throughout the buildings. The structural framing includes glue-laminated beams and steel columns.
Visit our Higher Education Studio to learn more about our expertise designing college and university buildings.
project scope
16,000 SF
design services
Studios
CLient
Clemson University
Awards